Fraser 28 - Simply Home

2
4
2
m2 257
sq 27.32

VIEW OTHER DESIGNS

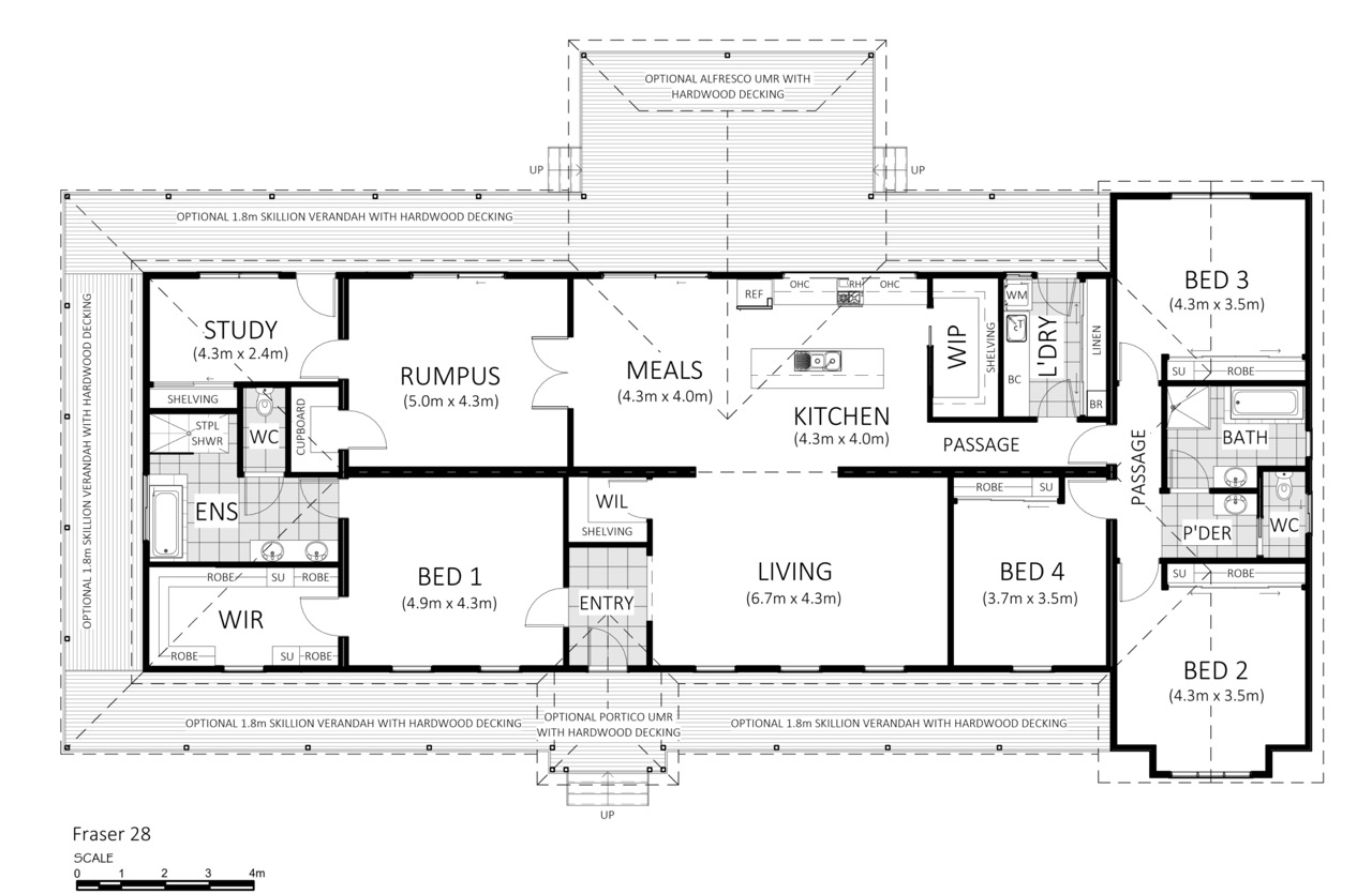
When you look at all the rich features of the Fraser 28 home design, you’ll quickly understand why this design is part of our Executive Living Series.

This stately home offers everything homeowners are looking for in terms of space, features and luxury.

The grand design of the exterior of the Fraser 28 home with its own options galore, highlights the main body of the home.

A front portico along with a full-sized veranda, provides a stately entrance to the home.

On the rear, an outdoor entertainment deck along with an additional full-sized veranda provides plenty of space for family events and other gatherings.

The formal portico entry leads to the interior of the home, directly adjacent to an informal dining/lounge area. In the rear of the home, a large open floor plan includes a family room where family members can relax while meals are being prepared. The adjacent kitchen boasts a walk-in pantry – great for extra storage space.

Optional French doors leading to outside from the kitchen/family area means cooks will be able to easily entertain guests outdoors. The basic floor plan includes four bedrooms, providing ample space for large families. The master bedroom has its own walk-in robe leading to a huge, stately master bath area.

There is another full-sized bathroom near the remaining bedrooms, as well as a walk-in linen closet and a full-sized laundry room, both with plenty of extra storage room.

As if all of this isn’t already enough living space, there are two additional areas leading off the family room, including a study and a rumpus room.

Although the Fraser 28 home has just about every feature a family could possibly want, there is still room for customisation if the homeowners should desire.

Some clients decide to add a wrap-around veranda while others want room for an attached garage.

The study is easily turned into a mud room, providing access to the main part of the house from the garage, as well as adding room for coats, shoes, etc.

Here at Swanbuild, we’ve tried to think of everything a homeowner would want when we designed the Fraser 28 home, yet we will gladly customise the basic floor plan to precisely fit the needs of our clients.

*Facade illustration is a representation only and may include upgrades.

All Home Designs