Villa 26 - Life Made

2
5
2
m2 241.2
sq 25.83

VIEW OTHER DESIGNS

This floor plan is available when selecting a Life Made & Sustainable Living Package.

 

One look at the impressive façade of the Villa 26 home is enough to intrigue the most discriminating home buyer. From its stately roof line to the extensive number of large windows allowing generous amounts of natural light to flood the interior, the Villa 26 is truly one grand domain.

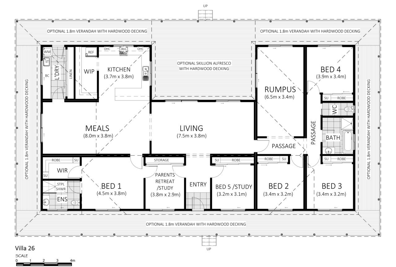
Upon entrance to this beautiful single storey home, residents and guests alike are treated to a generous-sized foyer that leads them directly to the main living area in the rear of the home. The main living area boasts two sets of sliding doors that provide a beautiful sight line to a large deck outside – great for entertaining or relaxing.

The Villa 26 floor plan includes five bedrooms, plus a separate study that could be used as a parent’s retreat. The master bedroom includes a private ensuite bathroom, along with a generous-sized walk-in robe. The kitchen includes a large walk in pantry and a wrap-around island adjacent to the dining room. A separate laundry with its own linen closet, along with a spacious rumpus room, and a full-sized bathroom conveniently located near the bedrooms, complete the floor plan of this impressive home.

The exterior of the Villa 26 is just as impressive as the interior. An optional verandah surrounds the entire exterior, providing plenty of outdoor space for casual family get-togethers or simply enjoying a beautiful sunset. The outdoor deck leading off of the living room is an ideal space for parties or dining outdoors. A set of stairs leading from the deck allows residents direct access to the yard in the rear of the home, providing easy access to a family garden, a play area for the kids, or whatever other activities homeowners would like to enjoy outdoors.

As always, Swanbuild home plans are easily customisable in order to perfectly tailor both the interior and the exterior to our client’s needs. The study could serve as an additional bedroom, and the rumpus room could serve as an exercise room or a large office. Whatever prospective homeowners are looking for, is likely part of the Villa 26 home design.

*Facade illustration is a representation only and may include upgrades.

All Home Designs