Prevalent 20 - Life Made

2
3
2
m2 183.2
sq 19.72

VIEW OTHER DESIGNS

This floor plan is available when selecting any of the 3 Inclusions Packages.

 

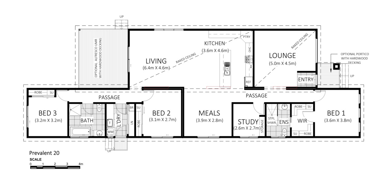
The Prevalent 20 home offers the perfect design for those who want their home to reflect the crisp, clean lines of contemporary architecture and is ideal for those with a narrow lot.

A beautiful portico entrance highlights the split roof design and large windows allow natural light to flow throughout the home. For those who like to relax or entertain outdoors, the rear alfresco gives you just the space you need.

Inside there are two living spaces, one off the entrance and another in the rear of the home. It is here where the design includes an open floor plan family room, meal space, and a large kitchen area with an island.

The basic floor plan includes three bedrooms along with a separate study. Capitalising on the popularity of the Prevalent 1 home design, the Prevalent 20 goes one step further to add an additional bathroom, in addition to moving the secondary bedrooms away from the master bedroom in order to create more privacy for family members. The master bedroom has its own walk-in robe, along with ensuite. On the opposite side of the home is where the two remaining bedrooms reside, along with the family bathroom and a separate laundry.

All in all, the Prevalent 20 home design encompasses the best of both worlds, an open floor plan when family members want to congregate and a number of private areas as well.

*Facade illustration is a representation only and may include upgrades.

All Home Designs