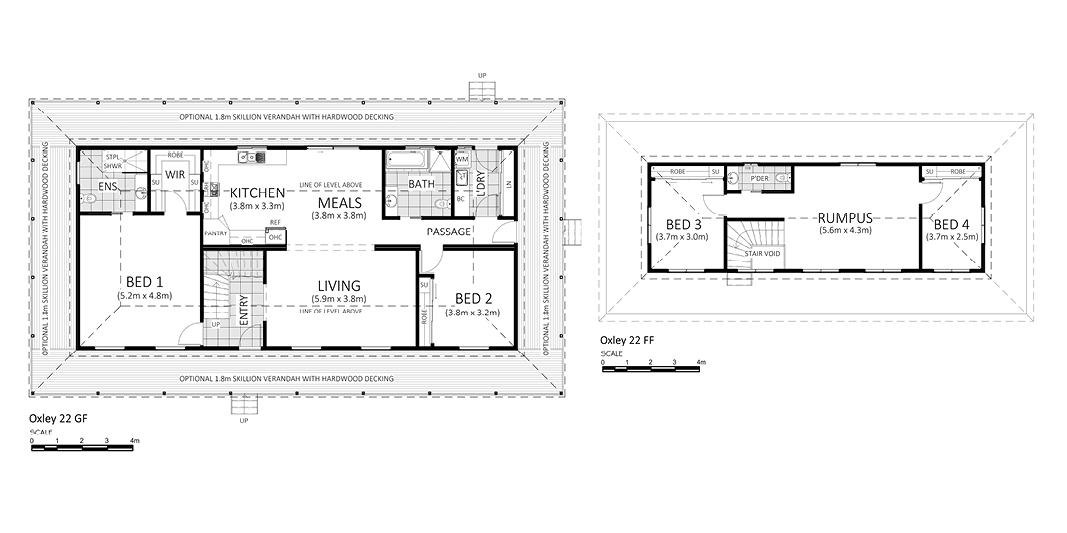
The spacious Oxley 22 floor plan provides the perfect backdrop for both interior and outdoor living and entertaining.
The first floor offers a convenient entryway and an open plan space between the living and kitchen/dining area, allowing you to stay close to friends and family while entertaining.
Two of the four bedrooms in the home reside on the first floor, with the well-appointed master bedroom offering plenty of room for rest and rejuvenation.
The laundry area provides ample room to complete tasks and is complimented by a large linen wardrobe and other storage areas in the room.
The second floor of this beautiful design includes two additional bedrooms, complete with their own built-in wardrobes.
A bathroom upstairs brings the total number of bathrooms in the home to three, meaning getting ready in the morning is a breeze for every member of the home.
Upstairs there is also a generously sized rumpus area where children can play or guests can have some privacy.
Outside the home, not just one, but two verandas span the entire length of the home, offering the perfect spots for entertaining or just relaxing outdoors while sipping a cool drink.
*Facade illustration is a representation only and may include upgrades.





