This floor plan is available when selecting any of the 3 Inclusions Packages.
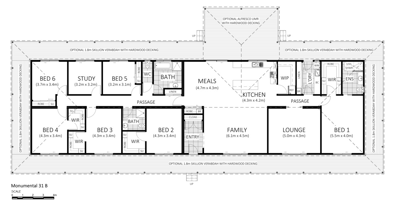
Large families will find everything they need and more, throughout our truly impressive Monumental 31B home design. From its grand ranch style exterior to the abundant spaces found throughout the interior, the Monumental 31B offers all of the features required by the most discriminating homeowners.
The exterior of the Monumental 31B begins with a stately, centrally located front entrance. The optional verandah adds a beautiful dual roof line to the design, as well as offering plenty of room for evening promenades. Once inside the home, family members and guests alike are greeted with plenty of storage space to house their coats and bags. A short turn leads to an enormous open living space complete with a living room, dining area, and a kitchen which boasts a large island that offers plenty of bench space. The kitchen also has a spacious walk-in pantry, along with a laundry room, which could double as a butler’s pantry, conveniently located nearby. The dining and kitchen area open onto the outdoor verandah where a large deck awaits to entertain guests and provide a space for outdoor living.
The Monumental 31B offers a total of six bedrooms, with the master bedroom also offering a full ensuite, as well as a generous-sized walk-in robe. All the other bedrooms offer robe areas, with three bedrooms boasting offering walk-robes as well. Two additional bathrooms are conveniently located nearby. Large families need lots of room to relax and the Monumental 31B delivers by offering both a separate study and an additional lounge area – great for kids who need extra space for playing and studying.
Swanbuild understands that many clients prefer to customise their floor plan to precisely suit their needs. Some popular options include opting to switch some of the bedroom areas to become additional living spaces, such as a rumpus room or office. Another popular choice is expanding the master bedroom space so homeowners can relax in an incredibly spacious and restful retreat, every night in their own home.
*Facade illustration is a representation only and may include upgrades.





