This floor plan is available when selecting any of the 3 Inclusions Packages.
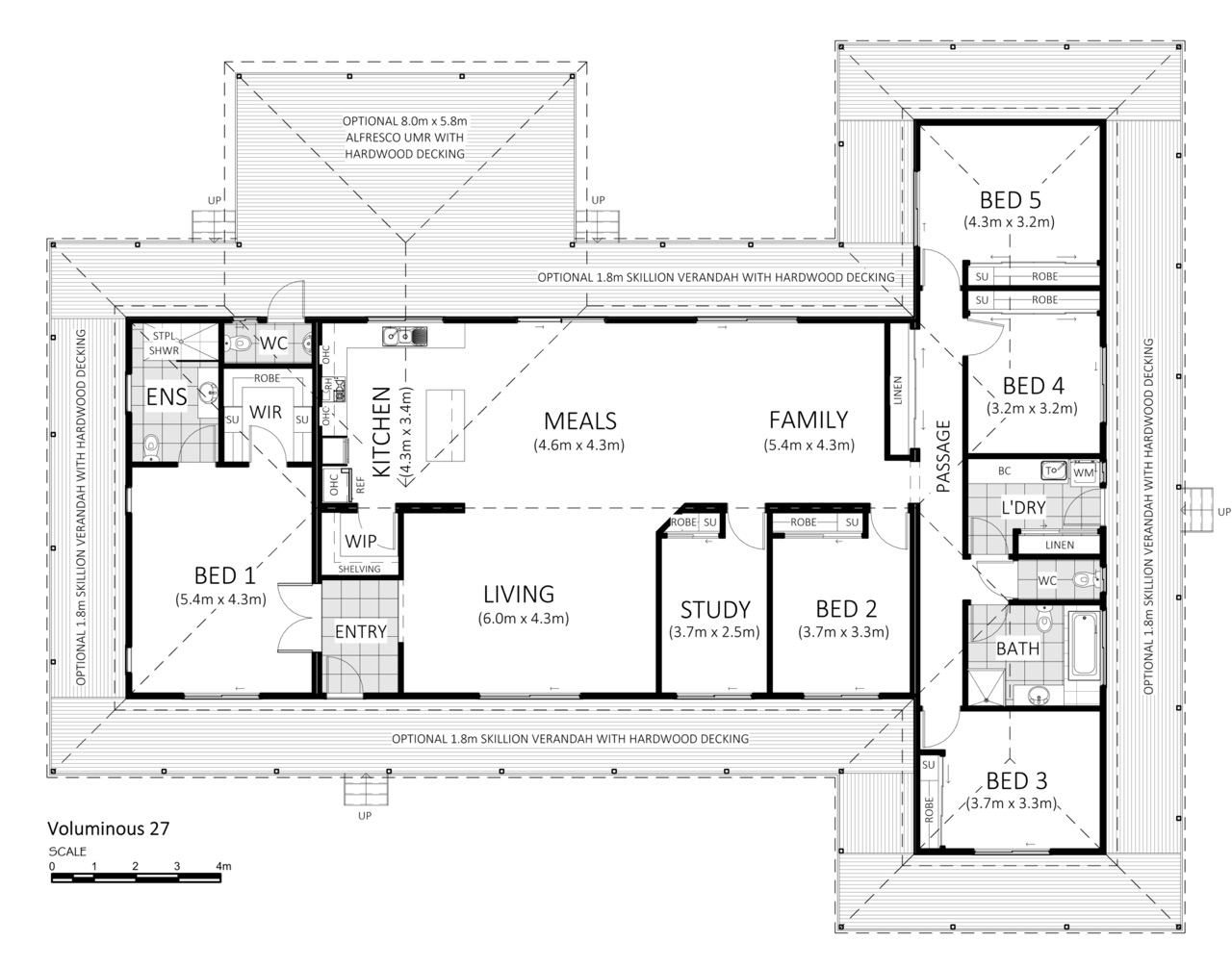
Created to impress but designed for function, the Voluminous 27 delivers something special for every member of the family. Parents will love the palatial Master Suite privately nestled at the front of the house, kids will appreciate the spacious bedrooms all with built-in robes and open plan entertaining area theres a place room for everyone.
Its not just the clever layout that makes the Voluminous 27 so liveable; its all the finishing touches too. The main bathroom has its own separate toilet, meaning more than one person can use the facilities at a time. While the master ensuite includes a large double shower and a dressing room big enough for two, so theres plenty of room to get ready without crowding. Along the hallway features a generous linen cupboard perfect for keeping sheets and towels in order.
For families who love to entertain, the Voluminous 27 is really impressive. The free flowing kitchen, meals living and family area is perfect for large gatherings, and the open plan allows for social interaction while preparing or serving in the European styled designer kitchen. Kids will love sitting up at the island kitchen bench for meals and for those fine dining occasions, the generous butlers pantry in the corner means food items and preparation can be kept cleverly out of sight.
Relaxing is so much easier when you are not on top of each other, so the Voluminous 27 has a living room plus a large family room which can double as a TV room or games room. With a large undercover alfresco deck opening out from the kitchen its ideal for parties. Life is too short to compromise – which is why the Voluminous 27 makes it easy to have comfort, style and convenience all under the one roof.
*Facade illustration is a representation only and may include upgrades.





