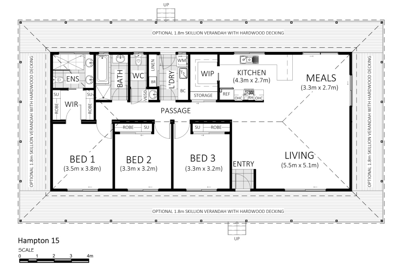
This floor plan is available when selecting any of the 3 Inclusions Packages.
The Hampton 15 is a compact family home, that still boasts large communal living areas that cater to fun times with family or friends. The optional wrap around verandah that encompasses the home creates a calming environment where you can enjoy a drink or soak up the atmosphere, taking in the views from your new home.
This floor plan comprises three large bedrooms, the master bedroom with an ensuite and walk through robe. The other two bedrooms have built-in robes incorporated to provide ample storage space.
The living area opens up off the entryway and adjoins a large dining area. The open plan kitchen and family room makes it easy to prep and organise meals in a relaxed space the whole family can enjoy.
The ample living areas allow parents and children their own spaces or room enough to come together.
*Facade illustration is a representation only and may include upgrades.





