This floor plan is available when selecting a Life Made & Sustainable Living Package.
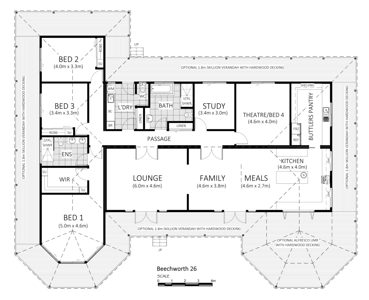
Inspired by traditional grand country homes, the Beechworth 26 offers a design that is certain to impress! With its unique shape and skillion veranadah around the home, you’ll be able to take in the surroundings and views from every perspective.
It’s not just the outside that will leave an impression either – the features inside this home are sure to excite you too. You’re welcomed into the home by the spacious and comfy lounge area, the perfect spot to relax after a long day, or enjoy movie time with the family at weekends. The lounge connects to the open plan family, dining and kitchen area that provides a social, connected space for everyone together while cooking a meal or to chat about their days. The large butler’s pantry offers lots of storage for any aspiring chef to keep all their ingredients and kitchen gadgets.
The family and lounge room also provide access to the hallway, where you will find a study for when you need somewhere quiet to work. A door leads to another space which would be great for a movie room, hobby room or even a 4th bedroom – the choice is yours!
The end of the hallway gives access to the bedrooms and family bathroom. The generous master bedroom has walk in robes and an ensuite, and the three windows that let in lots of sunshine and natural light. The other 2 large bedrooms have built in robes providing ample storage space and feature large windows so you can enjoy the views!
The separate laundry room provides you with somewhere to get that washing done, and a cupboard in this space as well as a linen closet in the hallway will give you lots of extra room for storage.
The Beechworth 26 is a beautiful home that offers space for the whole family in a real country style!
*Facade illustration is a representation only and may include upgrades.





